设为首页收藏本站

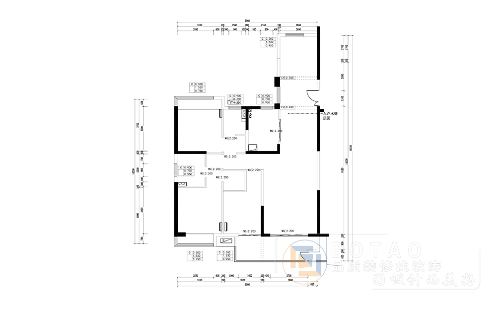
万达·海之心 户型:四室两厅一厨两卫

查看数: 6370 | 评论数: 0 | 收藏 0
关灯 | 提示:支持键盘翻页<-左 右->
    组图打开中,请稍候......
发布时间: 2023-11-12 09:13

正文摘要:

时间:2023年11月 地点:海安市中坝南路15号 小区:万达·海之心 户型:四室两厅一厨两卫 面积:130㎡ 风格:现代风格 设计师:陈敏(设计师作品集) 联系:水电验收后<< 预约参观>> 电话预约:1805 ...

回复

联系我们

地 址:江苏海安县中坝南路15-128、211(中国民生银行正对面)

电 话:18051420240 0513-81800560

E-mail:292875156@qq.com

波涛官方微信

Android App

18051420240 工作日:8:30-18:00
周 六:9:00-18:00