本版
帖子
用户
设为首页
收藏本站
开启辅助访问
欢迎访问海安波涛装饰工程有限公司官方网站!服务热线
18051420240 18051421807
登录
注册
首 页
设计团队
波涛精工
品牌建材
波涛服务
热装楼盘
商业空间
关于波涛
海安波涛装饰社区
»
波涛社区
›
热装楼盘
›
海安装修直播间
›
【水电验收】东港国际李先生家三室两厅一厨两卫
返回列表
[东港国际]
【水电验收】东港国际李先生家三室两厅一厨两卫
敏敏
发表于 2015-9-11 10:24:11
|
显示全部楼层
[复制链接]
2
18610
本帖最后由 敏敏 于 2018-5-7 16:32 编辑
地点:
海安县明珠城东侧东港国际
小区:
信拓·东港国际
户型:
三室两厅一厨两卫(123㎡)
项目经理:吴鹏震
设计师:戴凡斯(
设计师作品集
)
咨询电话
:
一键拨号
工程进度:水电验收后
<<
预约参观>>
电话预约:18051420240
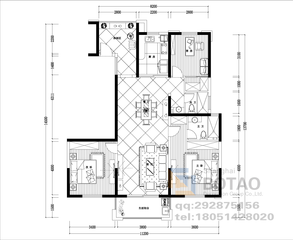
平面布置图:
东港国际
相关帖子
•
东港国际王总三室两厅一厨两卫
•
东港国际王总三室两厅一厨两卫户型效果图
•
东港包先生家三室两厅一厨两卫
•
东港国际徐总家五室两厅一厨两卫
•
东港国际徐总五室两厅一厨两卫户型效果图
•
东港国际蔡女士家三室两厅一厨两卫
•
东港国际蔡女士三室两厅一厨两卫户型效果图
•
东港唐先生三室两厅一厨两卫
•
东港国际薛先生三室两厅一厨两卫
•
东港国际薛先生三室两厅一厨两卫
回复
使用道具
举报
敏敏
当前离线
积分
6324
帖子
发消息
敏敏
发表于 2015-9-11 10:05:50
|
显示全部楼层
本帖最后由 敏敏 于 2015-9-25 16:30 编辑
效果图:
回复
支持
反对
使用道具
举报
敏敏
当前离线
积分
6324
帖子
发消息
敏敏
发表于 2015-9-11 10:24:11
|
显示全部楼层
本帖最后由 小丸子 于 2015-9-16 17:48 编辑
水电验收。水电验收是对强弱电要求、安全距离、水路走向等的验收。
回复
支持
反对
使用道具
举报
返回列表
高级模式
B
Color
Image
Link
Quote
Code
Smilies
您需要登录后才可以回帖
登录
|
立即注册
本版积分规则
发表回复
回帖后跳转到最后一页
关闭
18051420240
工作日:8:30-18:00
周 六:9:00-18:00
客户服务一
客户服务二
客户服务三