本版
帖子
用户
设为首页
收藏本站
开启辅助访问
欢迎访问海安波涛装饰工程有限公司官方网站!服务热线
18051420240 18051421807
登录
注册
首 页
设计团队
波涛精工
品牌建材
波涛服务
热装楼盘
商业空间
关于波涛
海安波涛装饰社区
»
波涛社区
›
热装楼盘
›
海安装修直播间
›
【木工验收】苏中天澜湾罗先生家三室两厅一厨两卫
返回列表
[苏中天澜湾]
【木工验收】苏中天澜湾罗先生家三室两厅一厨两卫
小丸子
发表于 2015-9-11 13:40:08
|
显示全部楼层
[复制链接]
1
13835
本帖最后由 敏敏 于 2018-5-7 16:05 编辑
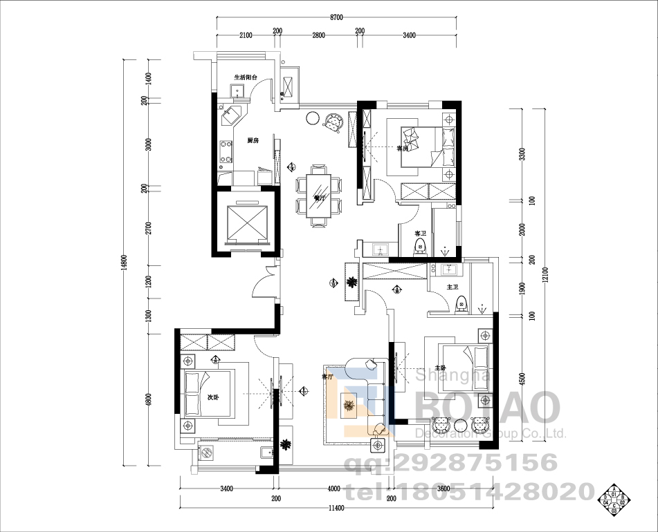
地点:
海安县曙光西路与永安路交汇苏中天澜湾
小区:
苏中天澜湾
户型:
三室两厅一厨两卫(140㎡)
项目经理:仲伟军
设计师:戴凡斯(
设计师作品集
)
咨询电话:
一键拨号
工程进度:木工验收后
<<
预约参观>>
电话预约:18051420240
平面布置图:
效果图:
苏中天澜湾
相关帖子
•
【成品安装】苏中天澜湾丁女士家三室两厅一厨两卫
•
苏中天澜湾丁女士家三室两厅一厨两卫效果图
•
苏中天澜湾曹先生三室两厅一厨两卫户型效果图
•
苏中天澜湾三室两厅一厨两卫户型效果图
•
苏中天澜湾崔先生三室两厅一厨两卫户型效果图
•
天澜湾王女士三室两厅一厨两卫户型效果图
•
苏中天澜湾徐女士家三室两厅一厨两卫
•
苏中天澜湾徐女士家三室两厅一厨一卫
•
苏中天澜湾徐女士家三室两厅一厨一卫户型效果图
•
苏中天澜湾蔡女士三室两厅一厨两卫
回复
使用道具
举报
小丸子
当前离线
积分
3977
帖子
发消息
小丸子
发表于 2015-9-11 13:40:08
|
显示全部楼层
木工验收——轻钢龙骨的验收。
(标准:吊顶龙骨不得扭曲、变形;吊杆位置合理、顺直;安装牢固可靠,四周平顺;要符合产品的组合要求,安装位置正确,连接牢固无松动;金属吊杆和挂件应进行防锈处理。)
回复
支持
反对
使用道具
举报
返回列表
高级模式
B
Color
Image
Link
Quote
Code
Smilies
您需要登录后才可以回帖
登录
|
立即注册
本版积分规则
发表回复
回帖后跳转到最后一页
关闭
18051420240
工作日:8:30-18:00
周 六:9:00-18:00
客户服务一
客户服务二
客户服务三