本版
帖子
用户
设为首页
收藏本站
开启辅助访问
欢迎访问海安波涛装饰工程有限公司官方网站!服务热线
18051420240 18051421807
登录
注册
首 页
设计团队
波涛精工
品牌建材
波涛服务
热装楼盘
商业空间
关于波涛
海安波涛装饰社区
»
波涛社区
›
热装楼盘
›
海安装修直播间
›
【成品安装】中洋现代城吉先生家三室两厅一厨两卫
返回列表
[中洋现代城]
【成品安装】中洋现代城吉先生家三室两厅一厨两卫
敏敏
发表于 2016-7-11 14:28:44
|
显示全部楼层
[复制链接]
2
14825
本帖最后由 敏敏 于 2018-5-7 15:25 编辑
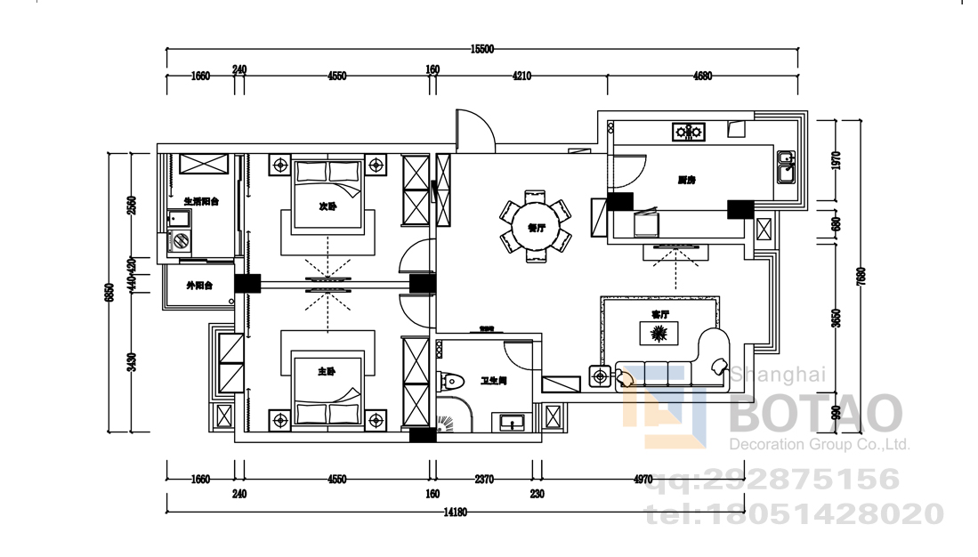
地点:海安县镇江海西路48号(人民路与永安路交界处)
小区:
中洋现代城2期
户型:三室两室一厨两卫 112㎡
项目经理:周金
设计师:李丹丹(
设计师作品集
)
工程进度:水电验收中
<< 预约参观>>
电话预约
:18051420240
一键拨号
平面布置图:
效果参考图:
回复
使用道具
举报
admin
当前离线
积分
746
帖子
发消息
admin
发表于 2016-5-19 17:00:37
|
显示全部楼层
成品安装进行中.........
回复
支持
反对
使用道具
举报
波涛公司
当前离线
积分
228
帖子
发消息
波涛公司
发表于 2016-7-11 14:28:44
|
显示全部楼层
基本完工
回复
支持
反对
使用道具
举报
返回列表
高级模式
B
Color
Image
Link
Quote
Code
Smilies
您需要登录后才可以回帖
登录
|
立即注册
本版积分规则
发表回复
回帖后跳转到最后一页
关闭
18051420240
工作日:8:30-18:00
周 六:9:00-18:00
客户服务一
客户服务二
客户服务三