本版
帖子
用户
设为首页
收藏本站
开启辅助访问
欢迎访问海安波涛装饰工程有限公司官方网站!服务热线
18051420240 18051421807
登录
注册
首 页
设计团队
波涛精工
品牌建材
波涛服务
热装楼盘
商业空间
关于波涛
海安波涛装饰社区
»
波涛社区
›
热装楼盘
›
海安装修直播间
›
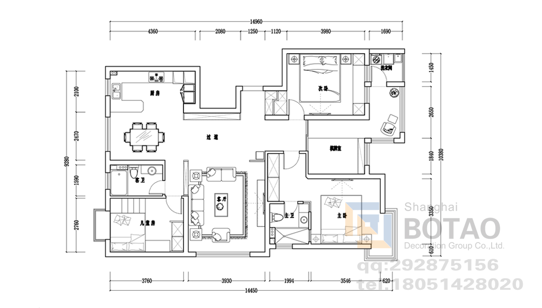
中洋现代城孙女士家三室两厅一厨两卫
返回列表
[中洋现代城]
中洋现代城孙女士家三室两厅一厨两卫
敏敏
发表于 2016-5-13 14:13:40
|
显示全部楼层
|
阅读模式
[复制链接]
0
24403
本帖最后由 敏敏 于 2017-1-14 13:03 编辑
地点:海安县镇江海西路48号
小区:
中洋现代城
户型:三室两室一厨两卫
项目经理:吴鹏震
设计师:袁宵(
设计师作品集
)
工程进度:水电验收中
<< 预约参观>>
电话预约
:18051420240
一键拨号
平面布置图:
效果参考图:
中洋现代城
相关帖子
•
中洋现代城方女士复式户型效果图
•
中洋现代城吴先生家三室两厅一厨两卫户型效果图
•
中洋现代城孙女士家四室两厅一厨两卫户型效果图
•
【水电施工中】中洋现代城吴先生家三室两厅一厨两卫
•
中洋现代城储先生家复式效果图
•
中洋现代城孙女士三室两厅一厨两卫户型效果图
•
中洋现代城周姐家三室两厅一厨两卫
•
中洋现代城周姐三室两厅一厨两卫户型效果图
•
中洋徐总三室两厅一厨两卫
回复
使用道具
举报
返回列表
高级模式
B
Color
Image
Link
Quote
Code
Smilies
您需要登录后才可以回帖
登录
|
立即注册
本版积分规则
发表回复
回帖后跳转到最后一页
关闭
18051420240
工作日:8:30-18:00
周 六:9:00-18:00
客户服务一
客户服务二
客户服务三