设为首页收藏本站
发新帖 返回列表

[怡景湾] 怡景湾陈总三室两厅一厨两卫

敏敏 发表于 2016-7-17 11:13:32 | 显示全部楼层 [复制链接]
4 27664
本帖最后由 敏敏 于 2018-5-7 14:54 编辑

时间:2016年6月15日
地点:
海安县黄海路北侧、钟庄路西侧
小区:怡景湾
户型:三室两厅一厨两卫   
项目经理:吴爱林
设计师:杭海鹏(
设计师作品集
工程进度:水电验收后<< 预约参观>>
点击这里给我发消息
电话预约:18051420240
一键拨号
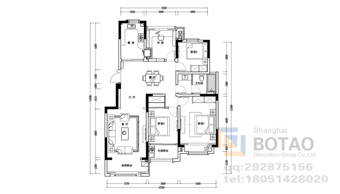
平面布置图:

平面布置图标.jpg

效果参考图:
客厅标.jpg
回复

使用道具 举报

发表于 2016-7-7 16:15:45 | 显示全部楼层
水电验收了
273328195499734689_编辑.jpg
377141164032459591_编辑.jpg
444887347241090157_编辑.jpg
469867234914234144_编辑_编辑.jpg
分线必须使用接线端子,寿命长,耐老化,安全性高。许多用的是绝缘胶带,寿命短,安全性差。

回复 支持 反对

使用道具 举报

发表于 2016-7-7 16:21:31 | 显示全部楼层
本帖最后由 波涛公司 于 2016-7-7 16:26 编辑

公司监理验收发现中央空调缺少八角盒需要整改 64584104586278532.jpg
对于第一次验收不合格,要求整改,然后监理再次验收必须合格


回复 支持 反对

使用道具 举报

发表于 2016-7-17 11:12:36 | 显示全部楼层
水电复验合格后->开始木工吊顶->完成后进行木工整体框架验收验收注意事项:波涛要求木工吊顶必须在封板之前验收整体框架,否则框架用什么材料,工艺如何,在封板后什么都看不到,这是一些不良装饰公司主要偷工减料方式,现在装饰公司做这一步验收不多,要求业主到现场验收更不多
154958567840388600_编辑.jpg
295255728618096324_编辑.jpg

421509562937796524_编辑.jpg

567049194777430121_编辑.jpg


回复 支持 反对

使用道具 举报

发表于 2016-7-17 11:13:32 | 显示全部楼层
吊顶封板后
260274647258985753_编辑.jpg
644025019565456468_编辑.jpg
回复 支持 反对

使用道具 举报

您需要登录后才可以回帖 登录 | 立即注册

本版积分规则

联系我们

地 址:江苏海安县中坝南路15-128、211(中国民生银行正对面)

电 话:18051420240 0513-81800560

E-mail:292875156@qq.com

波涛官方微信

Android App

18051420240 工作日:8:30-18:00
周 六:9:00-18:00