本版
帖子
用户
设为首页
收藏本站
开启辅助访问
欢迎访问海安波涛装饰工程有限公司官方网站!服务热线
18051420240 18051421807
登录
注册
首 页
设计团队
波涛精工
品牌建材
波涛服务
热装楼盘
商业空间
关于波涛
海安波涛装饰社区
»
波涛社区
›
热装楼盘
›
海安装修直播间
›
香溢花城周先生三室两厅一厨一卫
返回列表
[其他]
香溢花城周先生三室两厅一厨一卫
敏敏
发表于 2016-8-18 15:02:30
|
显示全部楼层
|
阅读模式
[复制链接]
0
24421
本帖最后由 敏敏 于 2018-5-7 11:56 编辑
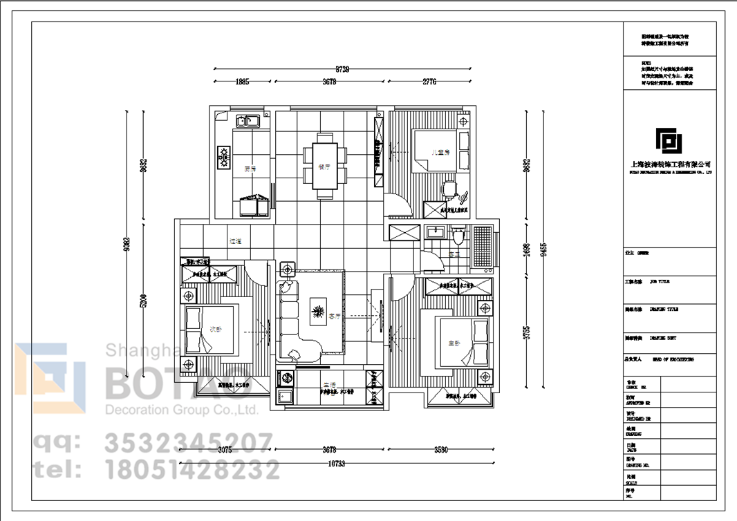
时间:2016年8月
地点:曲塘镇人民中路12号
小区:
香溢花城
户型:三室二厅一厨一卫
项目经理:吴爱林
设计师:季玲羽(
设计师作品集
)
工程进度:施工进行时
<< 预约参观>>
电话预约
:18051420240
一键拨号
平面布置图:
效果参考图:
香溢花城
,
三室两厅一厨一卫
,
现代风格
,
季玲羽
相关帖子
•
吉祥水岸罗女士三室两厅一厨一卫
•
奥体尚府周女士三室两厅一厨一卫
•
中洋徐总三室两厅一厨两卫
•
水韵天城王女士三室两厅一厨一卫
•
奥体尚府王总三室两厅一厨两卫
•
天澜湾徐先生三室两厅一厨两卫
•
东港国际薛先生三室两厅一厨两卫
•
香溢花城孙女士三室两厅一厨一卫
•
香溢花城四室两厅一厨两卫
回复
使用道具
举报
返回列表
高级模式
B
Color
Image
Link
Quote
Code
Smilies
您需要登录后才可以回帖
登录
|
立即注册
本版积分规则
发表回复
回帖后跳转到最后一页
关闭
18051420240
工作日:8:30-18:00
周 六:9:00-18:00
客户服务一
客户服务二
客户服务三