本版
帖子
用户
设为首页
收藏本站
开启辅助访问
欢迎访问海安波涛装饰工程有限公司官方网站!服务热线
18051420240 18051421807
登录
注册
首 页
设计团队
波涛精工
品牌建材
波涛服务
热装楼盘
商业空间
关于波涛
海安波涛装饰社区
»
波涛社区
›
热装楼盘
›
海安装修直播间
›
书香园三室两厅一厨一卫
返回列表
[书香园]
书香园三室两厅一厨一卫
敏敏
发表于 2017-3-26 18:41:16
|
显示全部楼层
[复制链接]
3
13179
本帖最后由 敏敏 于 2017-2-14 10:44 编辑
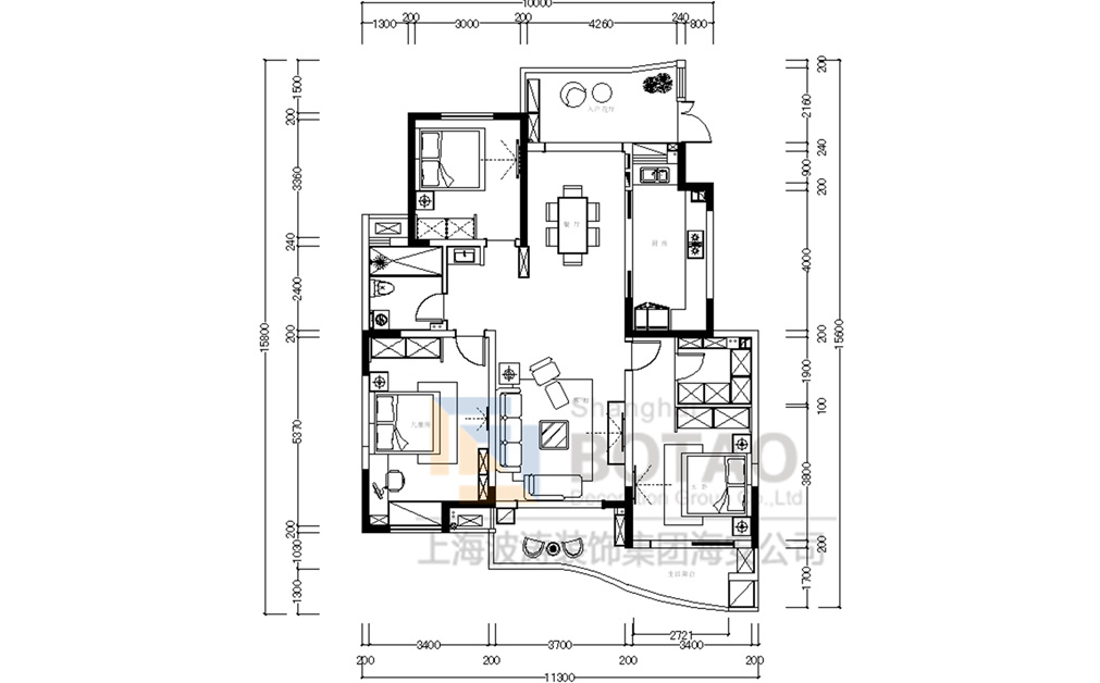
时间:2017年2月
地点:
海安县中坝南路12号建设大厦
小区:
书香园
面积:140㎡
户型:三室两厅一厨一卫
风格:北欧
设计师:季玲羽(
设计师作品集
)
工程进度:水电验收后
<< 预约参观>>
电话预约
:18051420240
一键拨号
原始结构图:
平面布置图:
效果布置图:
建设大厦
,
海安县
,
设计师
,
作品集
,
电话
相关帖子
•
天澜湾三室两厅一厨一卫
•
江海西路别墅五室两厅一厨两卫
•
江海西路别墅五室两厅一厨两卫
•
如意紫都于先生三室两厅一厨两卫
回复
使用道具
举报
小丸子
当前离线
积分
3977
帖子
发消息
小丸子
发表于 2017-3-26 18:29:41
|
显示全部楼层
本帖最后由 小丸子 于 2017-3-26 18:31 编辑
凿墙体
回复
支持
反对
使用道具
举报
小丸子
当前离线
积分
3977
帖子
发消息
小丸子
发表于 2017-3-26 18:39:59
|
显示全部楼层
项目经理在仔细查看设计
回复
支持
反对
使用道具
举报
小丸子
当前离线
积分
3977
帖子
发消息
小丸子
发表于 2017-3-26 18:41:16
|
显示全部楼层
回复
支持
反对
使用道具
举报
返回列表
高级模式
B
Color
Image
Link
Quote
Code
Smilies
您需要登录后才可以回帖
登录
|
立即注册
本版积分规则
发表回复
回帖后跳转到最后一页
关闭
18051420240
工作日:8:30-18:00
周 六:9:00-18:00
客户服务一
客户服务二
客户服务三