本版
帖子
用户
设为首页
收藏本站
开启辅助访问
欢迎访问海安波涛装饰工程有限公司官方网站!服务热线
18051420240 18051421807
登录
注册
首 页
设计团队
波涛精工
品牌建材
波涛服务
热装楼盘
商业空间
关于波涛
海安波涛装饰社区
»
波涛社区
›
热装楼盘
›
海安装修直播间
›
金石蓝郡谢女士复式
返回列表
[金石蓝郡]
金石蓝郡谢女士复式
小丸子
发表于 2017-10-14 11:33:09
|
显示全部楼层
|
阅读模式
[复制链接]
0
19971
时间:2017年10月
地点:
南通市海安县长江西路30号
小区:
金石蓝郡
户型:复式
风格:现代风格
设计师:戴凡斯
(
设计师作品集
)
工程进度:水电验收后<<
预约参观
>>
电话预约
:18051420240
一键拨号
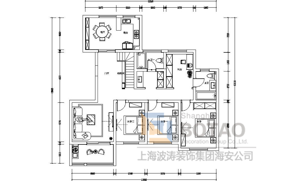
原始结构图:
平面布置图:
效果布置图:
回复
使用道具
举报
返回列表
高级模式
B
Color
Image
Link
Quote
Code
Smilies
您需要登录后才可以回帖
登录
|
立即注册
本版积分规则
发表回复
回帖后跳转到最后一页
关闭
18051420240
工作日:8:30-18:00
周 六:9:00-18:00
客户服务一
客户服务二
客户服务三