设为首页收藏本站
发新帖 返回列表

[别墅] 紫院公馆五室两厅一厨三卫

敏敏 发表于 2021-11-13 20:23:29 | 显示全部楼层 |阅读模式 [复制链接]
0 21178
时间:2021年10月
地点:江苏省盐城市东台
小区:紫院公馆
户型:别墅
风格:新中式风格
设计师:杭海鹏(
设计师作品集
在线交谈:
点击这里给我发消息
电话预约:18051420240
一键拨号
原始布置图:
一层原始.jpg
三层原始.jpg


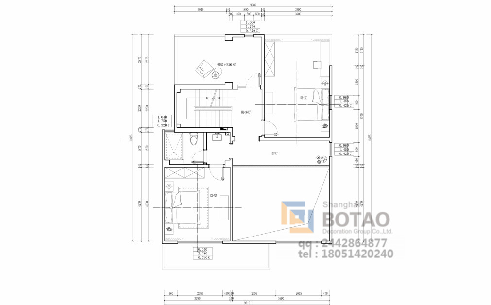
二层原始.jpg

平面布置图:
一层方案1.jpg

三层方案1.jpg

二层方案1.jpg

效果布置图:
客厅5.jpg

客厅.jpg

二楼北书房1.jpg

厨房1.jpg

二楼卧室.jpg

二层卧室11.jpg


回复

使用道具 举报

您需要登录后才可以回帖 登录 | 立即注册

本版积分规则

联系我们

地 址:江苏海安县中坝南路15-128、211(中国民生银行正对面)

电 话:18051420240 0513-81800560

E-mail:292875156@qq.com

波涛官方微信

Android App

18051420240 工作日:8:30-18:00
周 六:9:00-18:00