设为首页收藏本站
发新帖 返回列表

[别墅] 瓦甸私人大宅九室四厅一厨三卫

敏敏 发表于 2022-10-10 13:57:13 | 显示全部楼层 |阅读模式 [复制链接]
0 17321
时间:2022年9月
地点:瓦甸

小区:
私人大宅
户型:九
室四厅一厨三卫
面积:380㎡  

风格:新中式风格
设计师:杭梅(
设计师作品集
联系:
水电验收后<< 预约参观>>点击这里给我发消息
电话预约:18051428020
一键拨号
原始结构图:
1户型.jpg
2原始.jpg

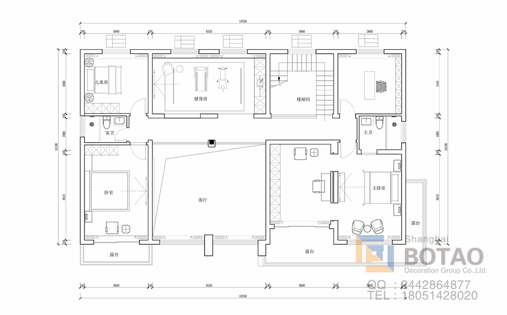
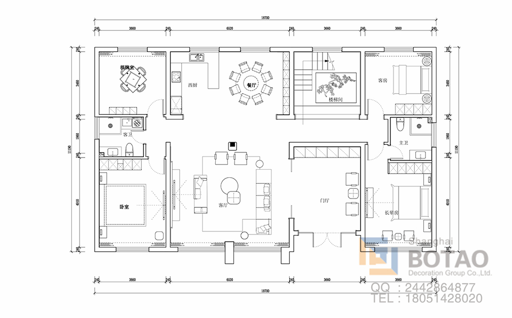
平面布置图:
1户型方案.jpg

2平面.jpg


效果布置图:
餐厅.jpg

客厅单张1.jpg

楼梯间.jpg

一楼西北卧室.jpg

二楼东卫生间.jpg

一楼西南卧室.jpg

一楼西卫生间.jpg

一楼长辈房.jpg

一楼长辈房卫生间.jpg

回复

使用道具 举报

您需要登录后才可以回帖 登录 | 立即注册

本版积分规则

联系我们

地 址:江苏海安县中坝南路15-128、211(中国民生银行正对面)

电 话:18051420240 0513-81800560

E-mail:292875156@qq.com

波涛官方微信

Android App

18051420240 工作日:8:30-18:00
周 六:9:00-18:00