设为首页收藏本站
发新帖 返回列表

[怡景湾] 怡景湾四室两厅一厨三卫

敏敏 发表于 2023-2-5 11:02:23 | 显示全部楼层 |阅读模式 [复制链接]
0 17310
时间:2023年1月
地点:
海安市中坝南路15号
小区:怡景湾

户型:别墅

面积:220 ㎡风格:新中式风格
设计师:徐冬冬(设计师作品集
联系:
水电验收后<< 预约参观>>点击这里给我发消息
电话预约:18051428020
一键拨号
原始结构图:
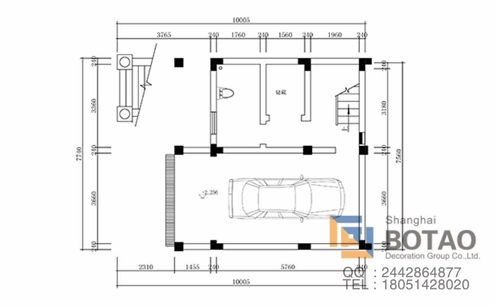
一层原始结构图.jpg

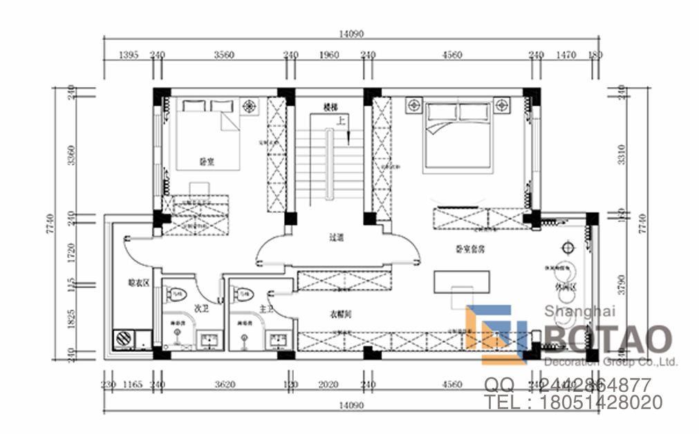
二层原始结构.jpg

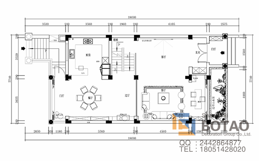
三层原始结构.jpg

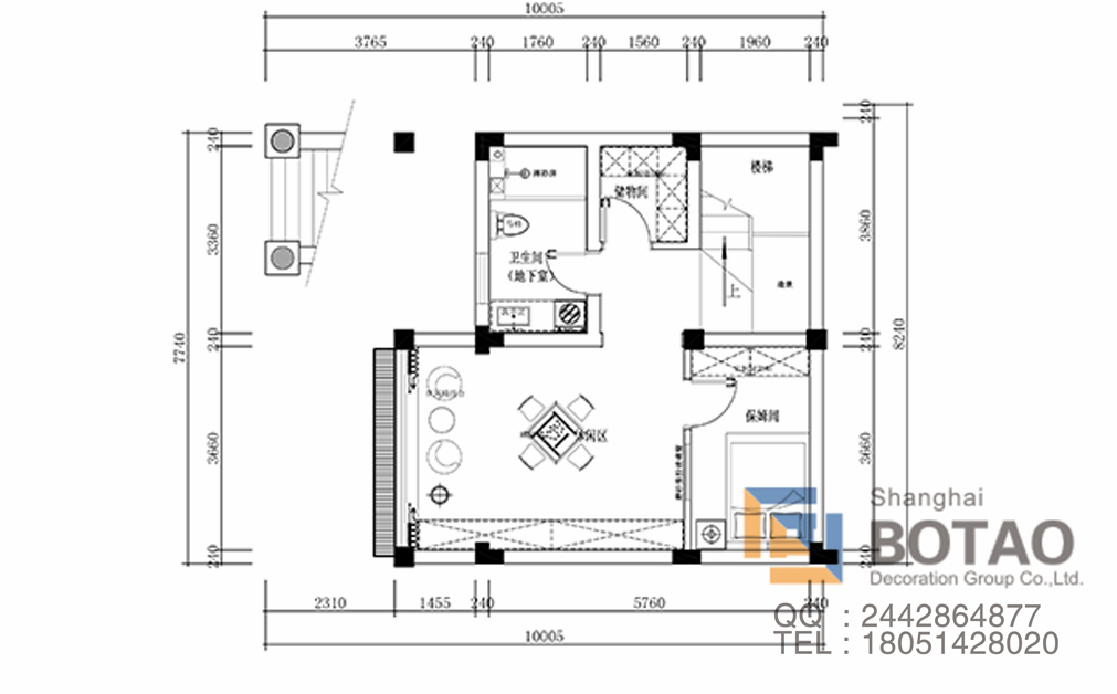
负一层原始结构图.jpg

平面布置图:
负一层平面布置.jpg

一层平面布置.jpg

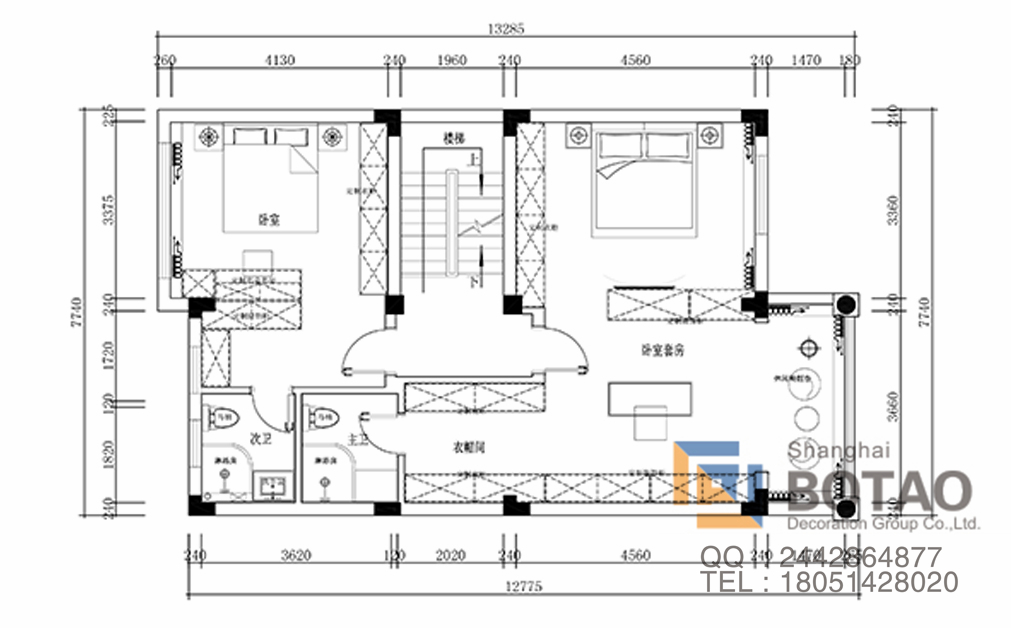
二层平面布置.jpg

三层平面布置.jpg
效果布置图:
客厅 (2).jpg

客厅 (3).jpg

客厅 (4).jpg

客厅 (5).jpg

麻将室.jpg

三楼.jpg

主卧 (1).jpg

主卧 (2).jpg






回复

使用道具 举报

您需要登录后才可以回帖 登录 | 立即注册

本版积分规则

联系我们

地 址:江苏海安县中坝南路15-128、211(中国民生银行正对面)

电 话:18051420240 0513-81800560

E-mail:292875156@qq.com

波涛官方微信

Android App

18051420240 工作日:8:30-18:00
周 六:9:00-18:00