本版
帖子
用户
设为首页
收藏本站
开启辅助访问
欢迎访问海安波涛装饰工程有限公司官方网站!服务热线
18051420240 18051421807
登录
注册
首 页
设计团队
波涛精工
品牌建材
波涛服务
热装楼盘
商业空间
关于波涛
海安波涛装饰社区
»
波涛社区
›
热装楼盘
›
海安装修直播间
›
桃源里 户型:三室两厅一厨两卫
返回列表
[其他]
桃源里 户型:三室两厅一厨两卫
敏敏
发表于 2023-5-18 10:23:22
|
显示全部楼层
|
阅读模式
[复制链接]
0
10094
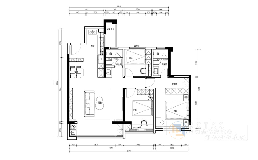
时间:2023年3月
地点:
海安市
中坝南路15号
小区:
桃源里
户型:三
室两厅一厨两卫
面积:120㎡
风格:现代风格
设计师:王喻(
设计师作品集
)
联系:
水电验收后<< 预约参观>>
电话预约:18051428020
一键拨号
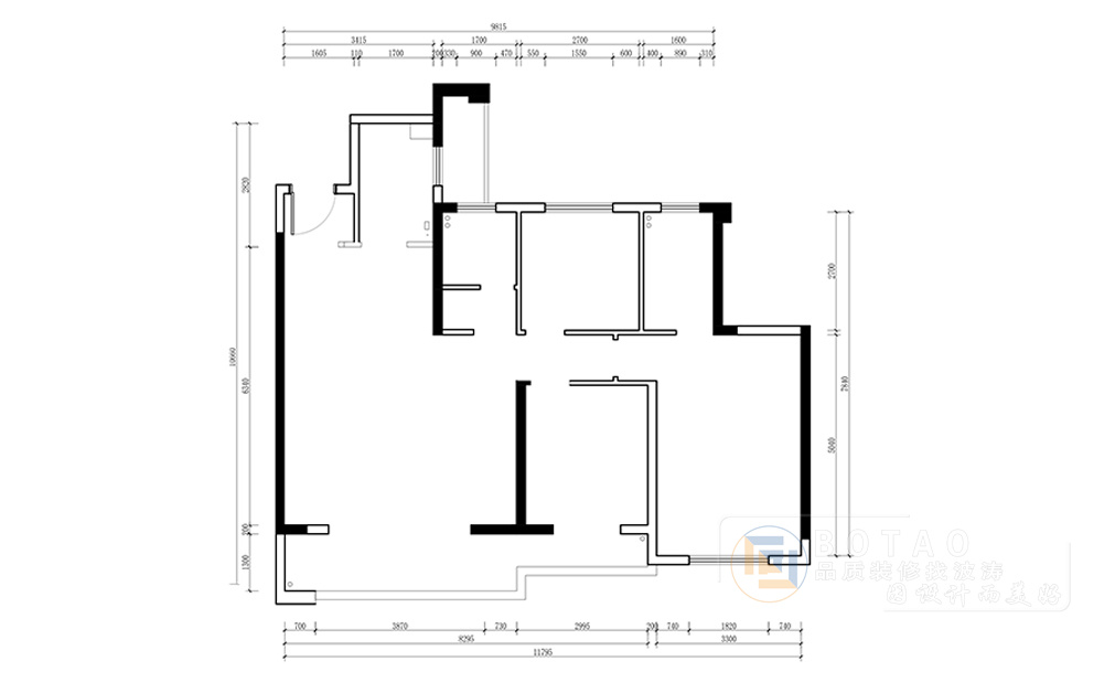
原始结构图:
平面布置图:
效果布置图:
回复
使用道具
举报
返回列表
高级模式
B
Color
Image
Link
Quote
Code
Smilies
您需要登录后才可以回帖
登录
|
立即注册
本版积分规则
发表回复
回帖后跳转到最后一页
关闭
18051420240
工作日:8:30-18:00
周 六:9:00-18:00
客户服务一
客户服务二
客户服务三