设为首页收藏本站
发新帖 返回列表

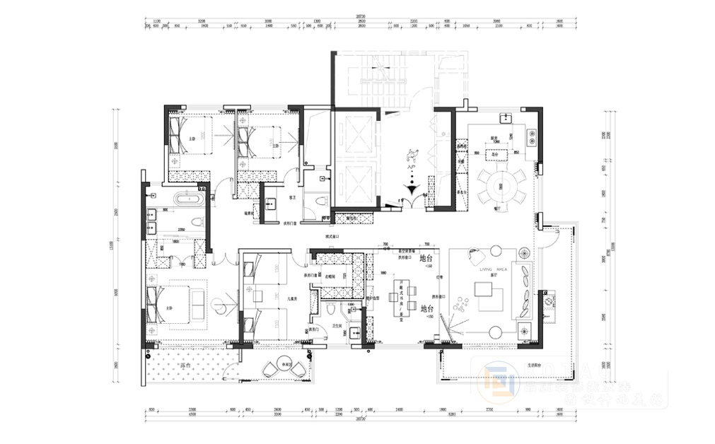
[其他] 金水湾·院语江南 户型:四室两厅一厨两卫

敏敏 发表于 2023-5-26 17:29:58 | 显示全部楼层 |阅读模式 [复制链接]
0 13583
时间:2023年5月
地点:
海安市中坝南路15号
小区:金水湾·院语江南

户型:四
室两厅一厨两卫
面积:252㎡
风格:法式复古风格
设计师:徐冬冬(设计师作品集
联系:水电验收后<< 预约参观>>点击这里给我发消息
电话预约:18051428020
一键拨号
原始结构图: 1.jpg

平面布置图:
2.jpg
效果布置图:

a7a129dce2e109db674b69357224006.jpg

8dea72668c550c65f3f7a240b6f4ad8.jpg

c4262182b40c076a9e0b49144d3210d.jpg

45.jpg

4.jpg

b2ecfb50e443b3caf60dae78b742675.jpg
5.jpg
回复

使用道具 举报

您需要登录后才可以回帖 登录 | 立即注册

本版积分规则

联系我们

地 址:江苏海安县中坝南路15-128、211(中国民生银行正对面)

电 话:18051420240 0513-81800560

E-mail:292875156@qq.com

波涛官方微信

Android App

18051420240 工作日:8:30-18:00
周 六:9:00-18:00