设为首页收藏本站
发新帖 返回列表

[别墅] 仁桥自建 别墅

敏敏 发表于 2023-6-15 16:53:33 | 显示全部楼层 |阅读模式 [复制链接]
0 23993
时间:2023年6月
地点:
海安市中坝南路15号
小区:仁桥自建

户型:别墅

面积:350㎡
风格:新中式风格
设计师:袁宵(设计师作品集
联系:水电验收后<< 预约参观>>点击这里给我发消息
电话预约:18051428020
一键拨号
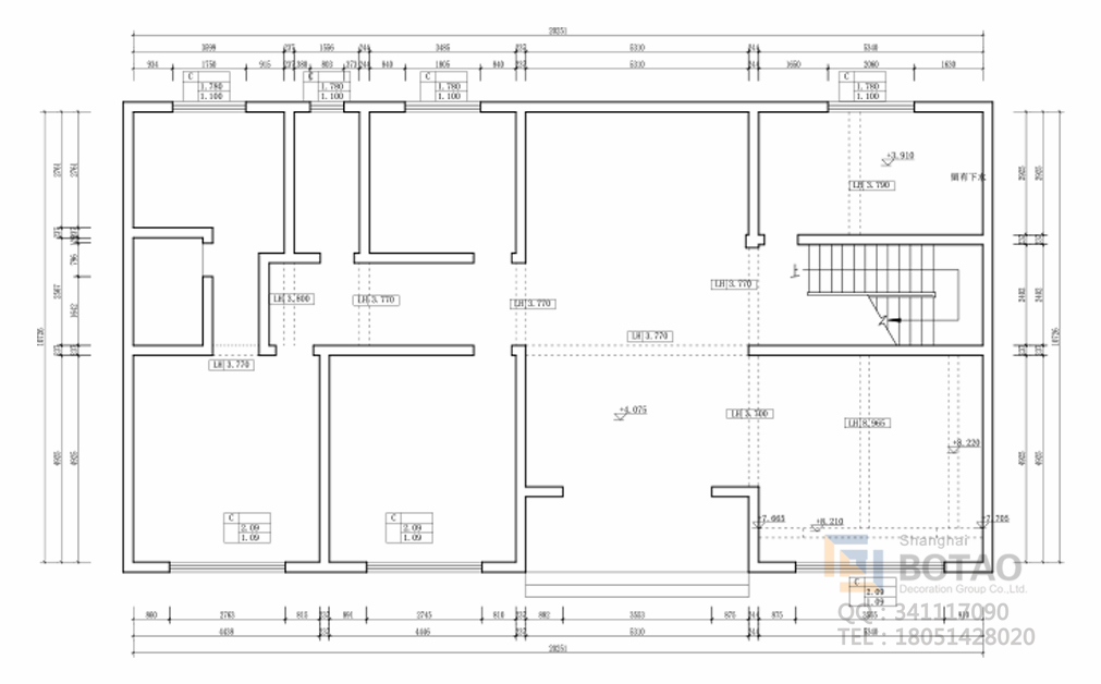
原始结构图: 3.jpg
1.jpg

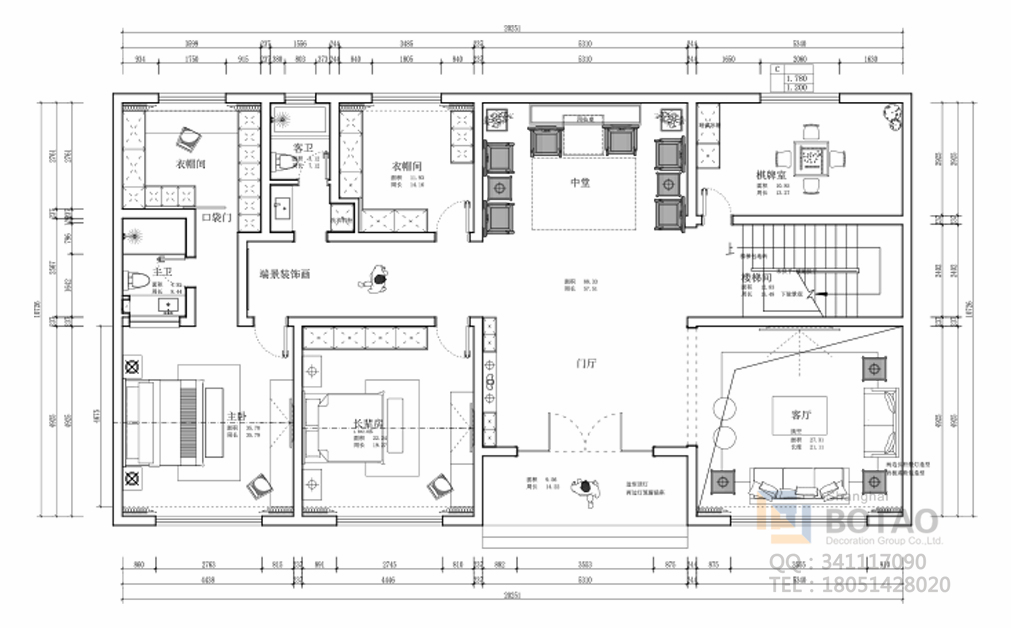
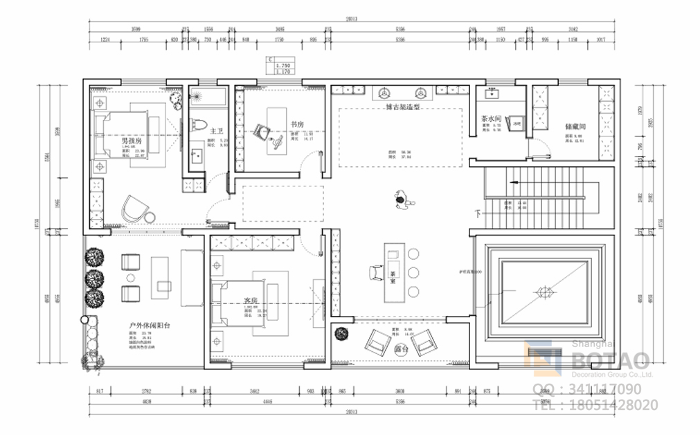
平面布置图:
4.jpg
2.jpg
效果布置图:

茶室二.jpg

茶室一.jpg

电视背景.jpg

客厅.jpg

门厅二.jpg

门厅一.jpg

客房.jpg

男孩房.jpg

棋牌室.jpg

书房.jpg

衣帽间.jpg

长辈房.jpg

中堂.jpg

主卫.jpg

主卧.jpg

主卧衣帽间.jpg

回复

使用道具 举报

您需要登录后才可以回帖 登录 | 立即注册

本版积分规则

联系我们

地 址:江苏海安县中坝南路15-128、211(中国民生银行正对面)

电 话:18051420240 0513-81800560

E-mail:292875156@qq.com

波涛官方微信

Android App

18051420240 工作日:8:30-18:00
周 六:9:00-18:00