设为首页收藏本站
发新帖 返回列表

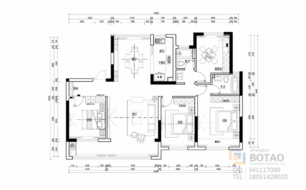
[其他] 桃源里 户型:四室两厅一厨两卫

敏敏 发表于 2023-6-15 17:02:04 | 显示全部楼层 |阅读模式 [复制链接]
0 11811
时间:2023年6月
地点:
海安市中坝南路15号
小区:桃源里

户型:四
室两厅一厨两卫
面积:140㎡
风格:美式风格
设计师:徐冬冬(设计师作品集
联系:水电验收后<< 预约参观>>点击这里给我发消息
电话预约:18051428020
一键拨号
原始结构图: 春风里3-1201 Model (1)-1.jpg

平面布置图:
春风里3-1201 Model (1)-2.jpg
效果布置图:

9917363e0ff181659bed3051e46b814.jpg

9028c447989299c2a041cf81bd52fb7.jpg

e17182ff725bdeb47c9920ced325bee.jpg

d8809688bb42ec269d163019cfab0da.jpg
回复

使用道具 举报

您需要登录后才可以回帖 登录 | 立即注册

本版积分规则

联系我们

地 址:江苏海安县中坝南路15-128、211(中国民生银行正对面)

电 话:18051420240 0513-81800560

E-mail:292875156@qq.com

波涛官方微信

Android App

18051420240 工作日:8:30-18:00
周 六:9:00-18:00