设为首页收藏本站
发新帖 返回列表

[凤凰城] 金水湾·凤凰城 户型:三室两厅一厨两卫

敏敏 发表于 2023-11-12 15:21:12 | 显示全部楼层 |阅读模式 [复制链接]
0 5928
时间:2023年11月
地点:
海安市中坝南路15号
小区:金水湾·凤凰城

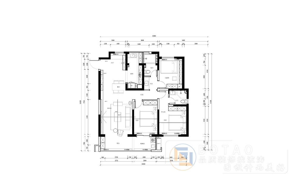
户型:三室两厅一厨两卫

面积:128㎡
风格:现代风格
设计师:杭海鹏(设计师作品集
联系:水电验收后<< 预约参观>>点击这里给我发消息
电话预约:18051428020
一键拨号
原始结构图: 凤凰城9-2001原始图.jpg

平面布置图:
凤凰城9-2001平面图.jpg
效果布置图:

1.jpg

2.jpg

3.jpg

北卧.jpg

南中卧室.jpg

主卧.jpg

回复

使用道具 举报

您需要登录后才可以回帖 登录 | 立即注册

本版积分规则

联系我们

地 址:江苏海安县中坝南路15-128、211(中国民生银行正对面)

电 话:18051420240 0513-81800560

E-mail:292875156@qq.com

波涛官方微信

Android App

18051420240 工作日:8:30-18:00
周 六:9:00-18:00