设为首页收藏本站
发新帖 返回列表

[其他] 金水湾·院语江南 户型:四室两厅一厨三卫

敏敏 发表于 2023-11-12 15:45:03 | 显示全部楼层 |阅读模式 [复制链接]
0 5674
时间:2023年11月
地点:
海安市中坝南路15号
小区:金水湾·院语江南

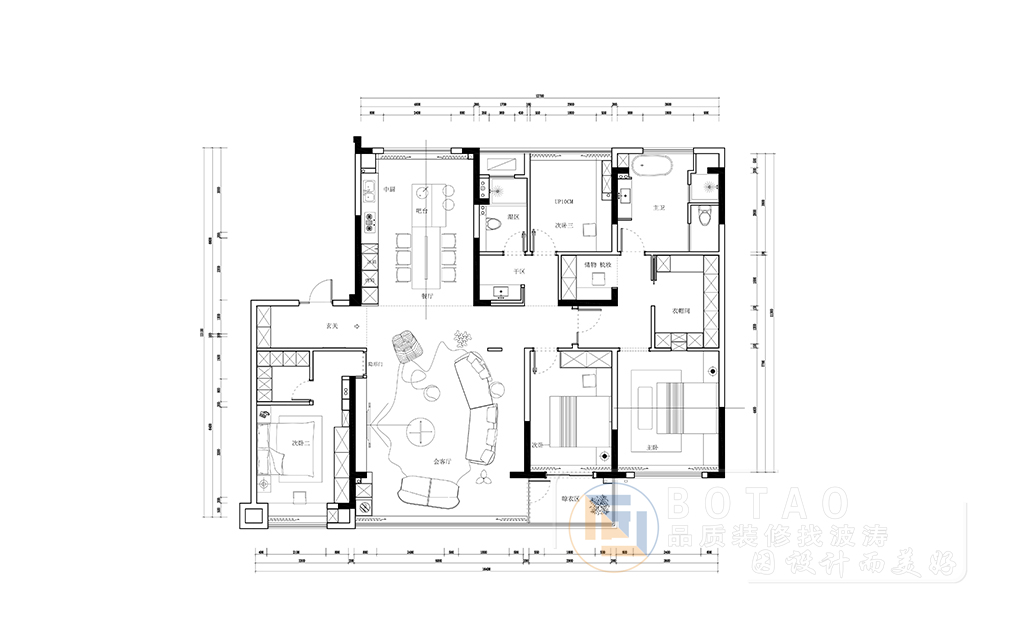
户型:四室两厅一厨三卫

面积:215㎡
风格:现代风格
设计师:杭海鹏(设计师作品集
联系:水电验收后<< 预约参观>>点击这里给我发消息
电话预约:18051428020
一键拨号
原始结构图: 院语江南原始图.jpg

平面布置图:
院语江南大平层平面图-模型.jpg
效果布置图:

a8186ea3ede5a968e6a77948d5d0559.jpg

854079514e4bc4b7e6d79296860d673.jpg

f8bbc7463746dbae5179ff6a5d66cbe.jpg

fcc5477a9fb77a72b4f33a210c8c8cf.jpg

主卧 2.jpg

主卧 1.jpg

主卫.jpg

女儿房.jpg

男儿房.jpg

北书房.jpg

回复

使用道具 举报

您需要登录后才可以回帖 登录 | 立即注册

本版积分规则

联系我们

地 址:江苏海安县中坝南路15-128、211(中国民生银行正对面)

电 话:18051420240 0513-81800560

E-mail:292875156@qq.com

波涛官方微信

Android App

18051420240 工作日:8:30-18:00
周 六:9:00-18:00