设为首页收藏本站
发新帖 返回列表

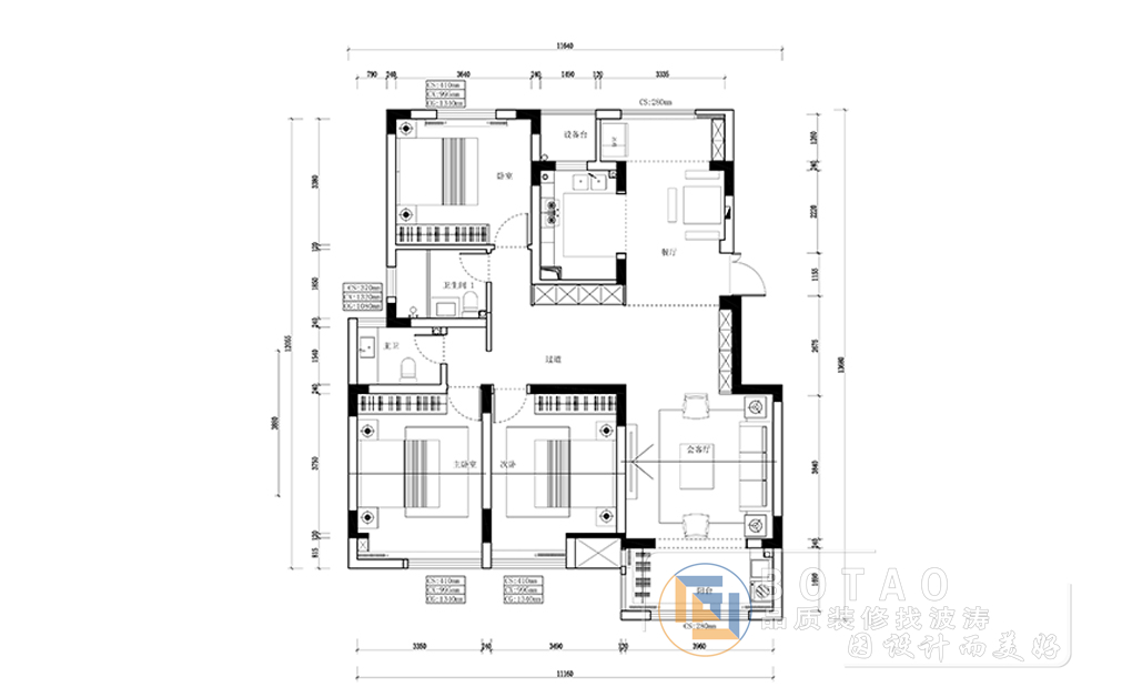
[苏中尚城] 苏中·尚城 户型:四室两厅一厨两卫

敏敏 发表于 2024-1-22 17:11:14 | 显示全部楼层 |阅读模式 [复制链接]
0 5132
时间:2023年12月
地点:
海安市中坝南路15号
小区:苏中·尚城

户型:四室两厅一厨两卫

面积:130㎡
风格:新中式风格
设计师:杭海鹏(设计师作品集
联系:水电验收后<< 预约参观>>点击这里给我发消息
电话预约:18051428020
一键拨号
原始结构图: 原始图.jpg

平面布置图:
平面布置.jpg
效果布置图:

591e2b6bf257acfcdefffac1135bcb3.jpg

c52d31bc59bc894e89cf1b75f4d13c6.jpg

139630381bc6342fbd7e60cc2890671.jpg

8143f0be3f8af15f3320f9ddbd564c9.jpg

f47cf5e4468e671d66e30d71f83f11d.jpg

0881c21fc95066290d48c428450c422.jpg

回复

使用道具 举报

您需要登录后才可以回帖 登录 | 立即注册

本版积分规则

联系我们

地 址:江苏海安县中坝南路15-128、211(中国民生银行正对面)

电 话:18051420240 0513-81800560

E-mail:292875156@qq.com

波涛官方微信

Android App

18051420240 工作日:8:30-18:00
周 六:9:00-18:00