设为首页收藏本站
发新帖 返回列表

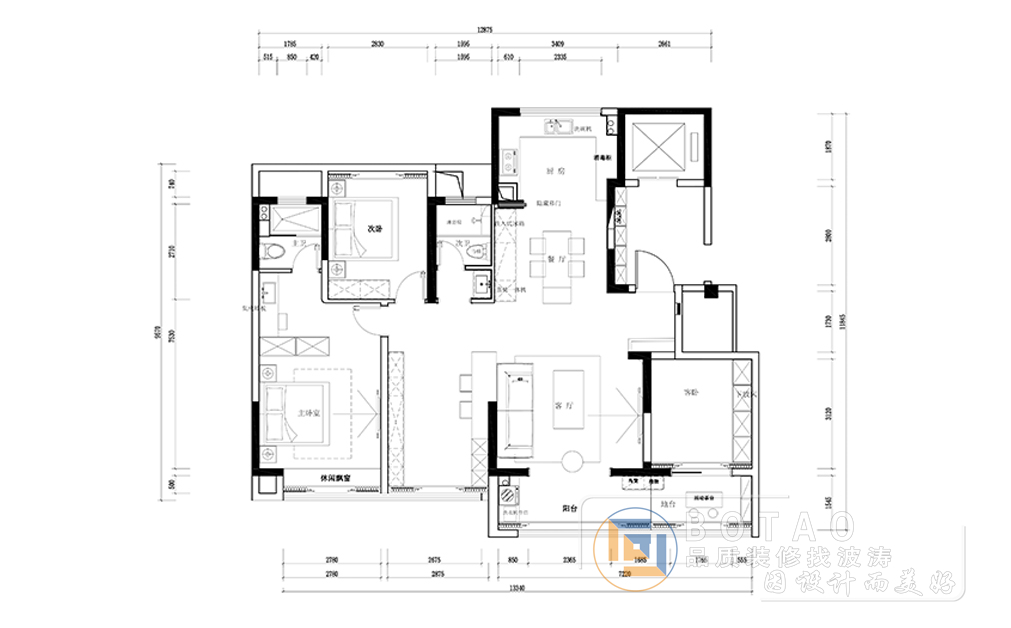
[其他] 绿城·桂语听澜 户型:三室两厅一厨两卫

敏敏 发表于 2024-1-24 16:20:55 | 显示全部楼层 |阅读模式 [复制链接]
0 5205
时间:2023年12月
地点:
海安市中坝南路15号
小区:绿城·桂语听澜

户型:三室两厅一厨两卫

面积:140㎡
风格:现代风格
设计师:徐希梅(设计师作品集
联系:水电验收后<< 预约参观>>点击这里给我发消息
电话预约:18051428020
一键拨号
原始结构图: 888.jpg

平面布置图:
5666.jpg
效果布置图:
888_View01.jpg

888_View0-2.jpg

88-8_View03.jpg

主卧 7.jpg

8888888888.jpg


回复

使用道具 举报

您需要登录后才可以回帖 登录 | 立即注册

本版积分规则

联系我们

地 址:江苏海安县中坝南路15-128、211(中国民生银行正对面)

电 话:18051420240 0513-81800560

E-mail:292875156@qq.com

波涛官方微信

Android App

18051420240 工作日:8:30-18:00
周 六:9:00-18:00