设为首页收藏本站
发新帖 返回列表

[凤凰城] 金水湾·凤凰城 户型:四室两厅一厨两卫 面积:150㎡

敏敏 发表于 2024-5-5 11:15:06 | 显示全部楼层 |阅读模式 [复制链接]
0 4525
时间:2024年1月
地点:
海安市中坝南路15号
小区:金水湾·凤凰城

户型:四室两厅一厨两卫

面积:150㎡
风格:中古风格
设计师:陈敏(设计师作品集
联系:水电验收后<< 预约参观>>点击这里给我发消息
电话预约:18051428020
一键拨号
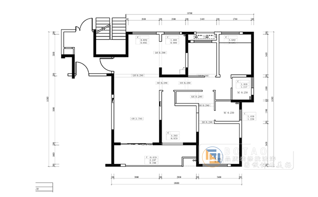
原始结构图: 凤凰城2-401施工图 布局1 (1)-1.jpg

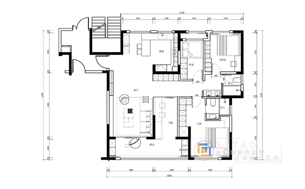
平面布置图:
凤凰城2-401施工图 布局1 (1)-2.jpg
效果布置图:

721262518b50e5316b555cedc23a77d.jpg

20d9f5a449f9a67abe05f6dc15f6774.jpg

859ad1addb37940d78f74561cda827f.jpg

1f69dde2cfd7c344c60afd40e7f90a4.jpg

25b1cb4de10242705636c817583fd60.jpg
回复

使用道具 举报

您需要登录后才可以回帖 登录 | 立即注册

本版积分规则

联系我们

地 址:江苏海安县中坝南路15-128、211(中国民生银行正对面)

电 话:18051420240 0513-81800560

E-mail:292875156@qq.com

波涛官方微信

Android App

18051420240 工作日:8:30-18:00
周 六:9:00-18:00