设为首页收藏本站
发新帖 返回列表

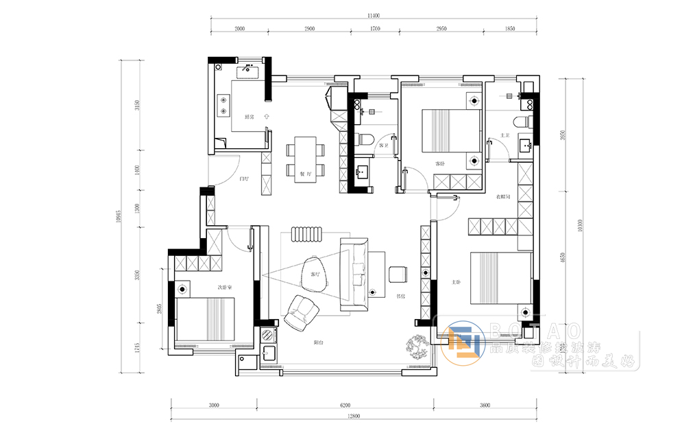
[其他] 雍锦翰棠 户型:三室两厅一厨两卫 面积:120㎡

敏敏 发表于 2024-5-5 11:30:00 | 显示全部楼层 |阅读模式 [复制链接]
0 4102
时间:2024年4月
地点:
海安市中坝南路15号
小区:
雍锦翰棠
户型:三室两厅一厨两卫

面积:120㎡
风格:现代轻奢风格
设计师:邓海国(设计师作品集
联系:水电验收后<< 预约参观>>点击这里给我发消息
电话预约:18051428020
一键拨号
原始结构图: 雍锦翰棠4-405原始图.jpg

平面布置图:
雍锦翰棠4-405平面方案.jpg
效果布置图:
电视背景.jpg

书房.jpg

主卧室.jpg


回复

使用道具 举报

您需要登录后才可以回帖 登录 | 立即注册

本版积分规则

联系我们

地 址:江苏海安县中坝南路15-128、211(中国民生银行正对面)

电 话:18051420240 0513-81800560

E-mail:292875156@qq.com

波涛官方微信

Android App

18051420240 工作日:8:30-18:00
周 六:9:00-18:00