设为首页收藏本站
发新帖 返回列表

[凤凰城] 四室两厅一厨两卫 面积:138㎡

敏敏 发表于 2024-6-19 14:14:36 | 显示全部楼层 |阅读模式 [复制链接]
0 5863
时间:2024年4月
地点:
海安市中坝南路15号
小区:金水湾·凤凰城

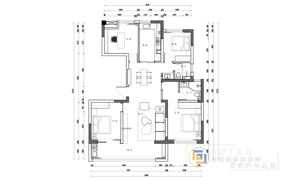
户型:四室两厅一厨两卫

面积:138㎡
风格:禅意新中式风格
设计师:杭梅(设计师作品集
联系:水电验收后<< 预约参观>>点击这里给我发消息
电话预约:18051428020
一键拨号
原始结构图: 凤凰城6-305施工图 布局1 (1)-1 拷贝.jpg

平面布置图:
凤凰城6-305施工图 布局1 (1)-2.jpg
效果布置图:


客厅.jpg

沙发.jpg

餐厅.jpg

干区.jpg

次卧 ·1.jpg

次卧.jpg

主卧.jpg

客卫.jpg

主卫.jpg
厨房.jpg
回复

使用道具 举报

您需要登录后才可以回帖 登录 | 立即注册

本版积分规则

联系我们

地 址:江苏海安县中坝南路15-128、211(中国民生银行正对面)

电 话:18051420240 0513-81800560

E-mail:292875156@qq.com

波涛官方微信

Android App

18051420240 工作日:8:30-18:00
周 六:9:00-18:00