设为首页收藏本站
发新帖 返回列表

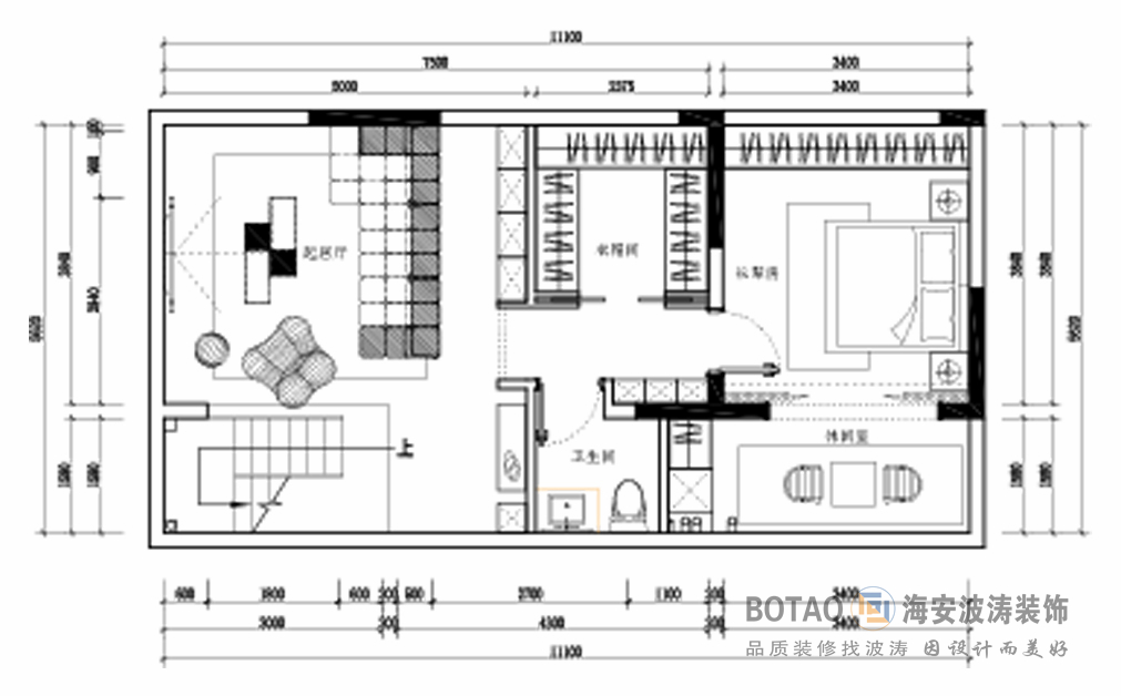
[凤凰城] 金水湾·凤凰城 户型:四室两厅一厨两卫 面积:188㎡

敏敏 发表于 2024-12-23 17:08:52 | 显示全部楼层 |阅读模式 [复制链接]
0 5492
时间:2024年12月
地点:
海安市中坝南路15号
小区:金水湾·凤凰城

户型:四室两厅一厨两卫

面积:188㎡
风格:奶油风格
设计师:杭海鹏(设计师作品集
联系:水电验收后<< 预约参观>>点击这里给我发消息
电话预约:18051428020
一键拨号
原始结构图: 11.jpg
33.jpg

平面布置图:
22.jpg

44.jpg

效果布置图:

6 客厅角度 1.jpg

3 餐厅角度 1.jpg

5 餐厅角度 2.jpg

7 客厅角度 2.jpg

8 客厅角度 3.jpg

10 主卧角度 1.jpg

13 次卧室 .jpg

15 起居室角度 1.jpg

16 起居室角度 2.jpg
回复

使用道具 举报

您需要登录后才可以回帖 登录 | 立即注册

本版积分规则

联系我们

地 址:江苏海安县中坝南路15-128、211(中国民生银行正对面)

电 话:18051420240 0513-81800560

E-mail:292875156@qq.com

波涛官方微信

Android App

18051420240 工作日:8:30-18:00
周 六:9:00-18:00