设为首页收藏本站
发新帖 返回列表

[书香园] 书香园 户型:一厅一厨六室四卫 面积:300平+叠墅

敏敏 发表于 2025-5-11 18:30:15 | 显示全部楼层 |阅读模式 [复制链接]
0 1391
本帖最后由 敏敏 于 2025-5-11 18:37 编辑

时间:2025年4月
地点:
海安市中坝南路15号
小区:书香园

户型:六室两厅一厨四卫
面积:300平+叠墅
风格:意式风格
设计师:杭海鹏(设计师作品集
联系:水电验收后<< 预约参观>>点击这里给我发消息
电话预约:18051428020
一键拨号
原始结构图:
一层原始 拷贝.jpg

负一层原始.jpg
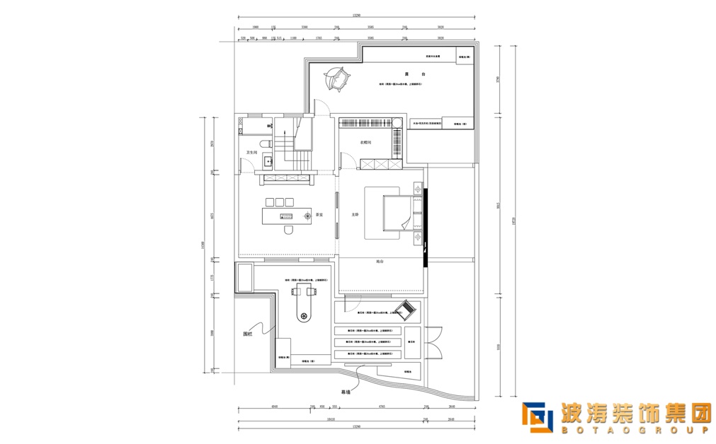
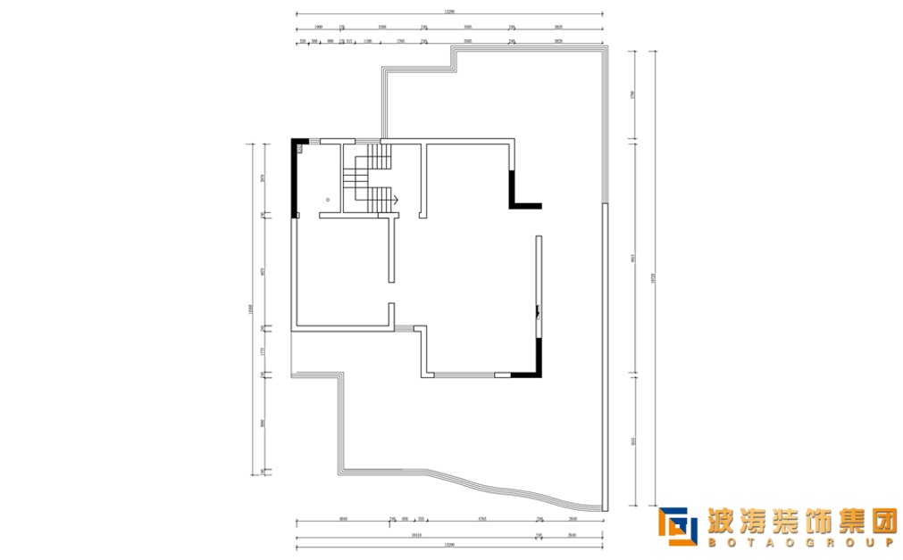
平面布置图:
一层平面.jpg

负一层平面.jpg
效果布置图:
餐厅.jpg

厨房.jpg

二楼茶室 2.jpg

二楼茶室.jpg

客厅 沙发墙.jpg

北阳台.jpg

客厅电视墙.jpg

楼梯.jpg

南阳台.jpg

女儿房 1.jpg

女儿房 2.jpg

女儿卫.jpg

一楼东卧.jpg

一楼西卧室.jpg

主卫.jpg

主卧-调整_0000.jpg

回复

使用道具 举报

您需要登录后才可以回帖 登录 | 立即注册

本版积分规则

联系我们

地 址:江苏海安县中坝南路15-128、211(中国民生银行正对面)

电 话:18051420240 0513-81800560

E-mail:292875156@qq.com

波涛官方微信

Android App

18051420240 工作日:8:30-18:00
周 六:9:00-18:00