设为首页收藏本站
发新帖 返回列表

[别墅] 东台弶港戴总别墅 户型:别墅 面积:别墅460㎡ 院子650㎡

敏敏 发表于 2025-5-22 17:36:45 | 显示全部楼层 |阅读模式 [复制链接]
0 3324
时间:2025年4月
地点:
海安市中坝南路15号
小区:
东台弶港戴总别墅
户型:别墅
面积:别墅460㎡  院子650
风格:意式轻奢风格
设计师:袁霄(设计师作品集)高鹏飞(设计师作品集
联系:水电验收后<< 预约参观>>点击这里给我发消息
电话预约:18051428020
一键拨号
原始结构图:


一楼原始.jpg

二楼原始jpg.jpg
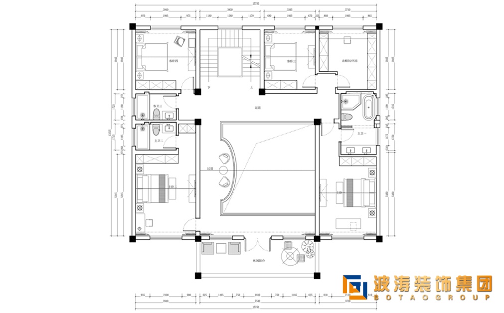
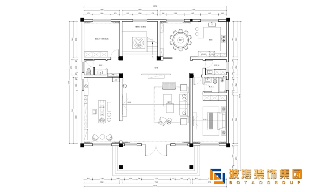
平面布置图:
一楼平面.jpg

二楼平面.jpg
效果布置图:
1楼西北.jpg

1楼西南茶室.jpg

2楼东南.jpg

2楼西南.jpg

餐厅单张_output.jpg

电视背景_output.jpg

二楼西北.jpg

沙发背景_output.jpg

一楼主卧.jpg

院子.jpg

院子背景.jpg
回复

使用道具 举报

您需要登录后才可以回帖 登录 | 立即注册

本版积分规则

联系我们

地 址:江苏海安县中坝南路15-128、211(中国民生银行正对面)

电 话:18051420240 0513-81800560

E-mail:292875156@qq.com

波涛官方微信

Android App

18051420240 工作日:8:30-18:00
周 六:9:00-18:00