设为首页收藏本站
发新帖 返回列表

[金水湾] 院语江南 户型:四室两厅一厨三卫 面积:238㎡

敏敏 发表于 2025-5-22 17:44:32 | 显示全部楼层 |阅读模式 [复制链接]
0 2435
时间:2025年4月
地点:
海安市中坝南路15号
小区:院语江南

户型:四室两厅一厨三卫
面积:238㎡
风格:意式轻奢风格
设计师:袁霄(设计师作品集)高鹏飞(设计师作品集
联系:水电验收后<< 预约参观>>点击这里给我发消息
电话预约:18051428020
一键拨号
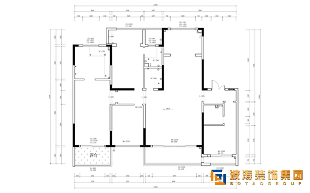
原始结构图:
原始.jpg
平面布置图:
平面.jpg
效果布置图:
客餐厅背景1.jpg

客餐厅背景2.jpg

客卧衣帽间.jpg

老人房.jpg

女儿房.jpg

主卧1.jpg
回复

使用道具 举报

您需要登录后才可以回帖 登录 | 立即注册

本版积分规则

联系我们

地 址:江苏海安县中坝南路15-128、211(中国民生银行正对面)

电 话:18051420240 0513-81800560

E-mail:292875156@qq.com

波涛官方微信

Android App

18051420240 工作日:8:30-18:00
周 六:9:00-18:00