设为首页收藏本站
发新帖 返回列表

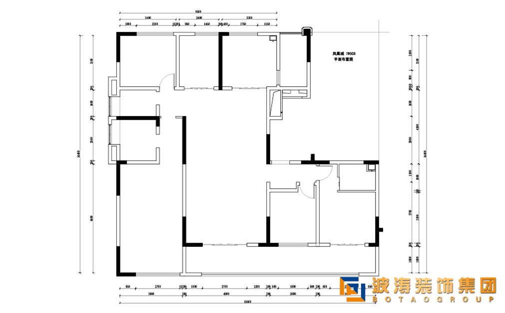
[凤凰城] 凤凰城 户型:三室两厅一厨两卫 面积:225平

敏敏 发表于 2025-5-31 16:36:21 | 显示全部楼层 |阅读模式 [复制链接]
0 3210
时间:2025年5月
地点:
海安市中坝南路15号
小区:凤凰城

户型:三室两厅一厨两
面积:225平
风格:现代风格
设计师:杭海鹏(设计师作品集
联系:水电验收后<< 预约参观>>点击这里给我发消息
电话预约:18051428020
一键拨号
原始结构图:

原始.jpg
平面布置图:
pingmian1.jpg
效果布置图:
1.jpg

2.jpg

3.jpg

4.jpg

5.jpg

6.jpg

7.jpg

8.jpg

9.jpg

10.jpg

11.jpg

12.jpg

13.jpg

14.jpg

15.jpg

16.jpg

17 主卧室.jpg

18 主卧室.jpg

19 主卧室.jpg
回复

使用道具 举报

您需要登录后才可以回帖 登录 | 立即注册

本版积分规则

联系我们

地 址:江苏海安县中坝南路15-128、211(中国民生银行正对面)

电 话:18051420240 0513-81800560

E-mail:292875156@qq.com

波涛官方微信

Android App

18051420240 工作日:8:30-18:00
周 六:9:00-18:00