设为首页收藏本站
发新帖 返回列表

[其他] 院语江南 户型:五室两厅一厨三卫 面积:215平

敏敏 发表于 2025-5-31 16:41:28 | 显示全部楼层 |阅读模式 [复制链接]
0 2328
时间:2025年5月
地点:
海安市中坝南路15号
小区:院语江南

户型:五室两厅一厨三
面积:215平
风格:轻奢风格
设计师:杭海鹏(设计师作品集
联系:水电验收后<< 预约参观>>点击这里给我发消息
电话预约:18051428020
一键拨号
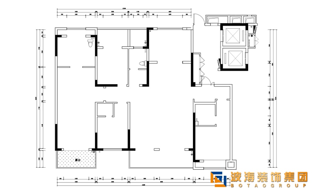
原始结构图:

原始.jpg
平面布置图:
平面.jpg
效果布置图:
2-1 客餐厅 1.jpg

2-1 客餐厅 2.jpg

2-1 客餐厅 3.jpg

6- 主卫 1.jpg

6- 主卫 2.jpg

6-主卧.jpg

6-主卧书房.jpg

6-主卧衣帽间.jpg

8-儿童卧室-1.jpg

8-儿童卧室-带衣帽间.jpg

8-儿卫.jpg

9-次卫.jpg

9-次卧室.jpg
回复

使用道具 举报

您需要登录后才可以回帖 登录 | 立即注册

本版积分规则

联系我们

地 址:江苏海安县中坝南路15-128、211(中国民生银行正对面)

电 话:18051420240 0513-81800560

E-mail:292875156@qq.com

波涛官方微信

Android App

18051420240 工作日:8:30-18:00
周 六:9:00-18:00