欢迎访问上海波涛装饰集团海安公司官方网站!服务热线
18051428020
在线留言
|
收藏本站
|
常见问题
|
关于我们
首 页
设计团队
装修案例
波涛精工
品牌建材
波涛服务
热装楼盘
商业空间
关于波涛
波澜国际
您现在的位置:
首页
>
设计团队
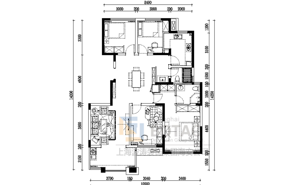
>金石蓝郡装修案例
金石蓝郡装修案例
现代
现代
现代
现代
现代
现代