本版
帖子
用户
设为首页
收藏本站
开启辅助访问
欢迎访问海安波涛装饰工程有限公司官方网站!服务热线
18051420240 18051421807
登录
注册
首 页
设计团队
波涛精工
品牌建材
波涛服务
热装楼盘
商业空间
关于波涛
海安波涛装饰社区
»
波涛社区
›
热装楼盘
›
海安装修直播间
›
书香园薛先生三室两厅一厨两卫
返回列表
[书香园]
书香园薛先生三室两厅一厨两卫
小丸子
发表于 2017-5-24 13:39:11
|
显示全部楼层
[复制链接]
4
12325
时间:2017年3月
地点:
海安县中坝南路12号建设大厦
小区:
书香园
户型:三室两厅一厨两卫
风格:现代
设计师:李丹丹(
设计师作品集
)
工程进度:水电验收后
<< 预约参观>>
电话预约
:18051420240
一键拨号
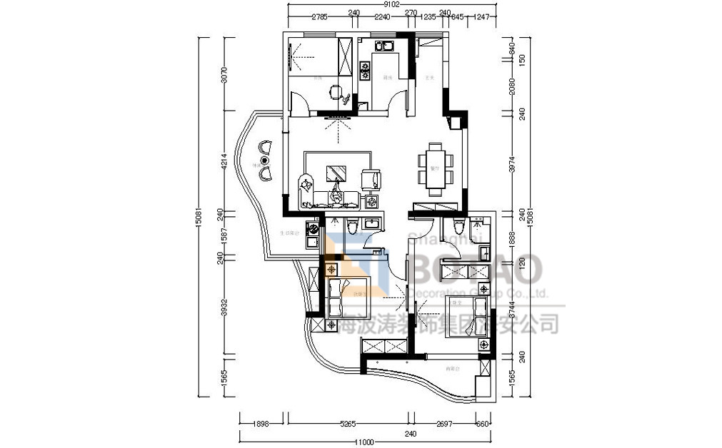
平面布置图:
效果布置图:
建设大厦
,
海安县
,
设计师
,
作品集
,
电话
相关帖子
•
天澜湾三室两厅一厨一卫
•
江海西路别墅五室两厅一厨两卫
•
江海西路别墅五室两厅一厨两卫
•
如意紫都于先生三室两厅一厨两卫
回复
使用道具
举报
小丸子
当前离线
积分
3977
帖子
发消息
小丸子
发表于 2017-5-24 13:35:08
|
显示全部楼层
【
波
涛施工细节】每个工地都有三张展板:1,公司介绍及所有的资质2,设计师介绍及原始结构图,户型方案,效果3,七次节点验收,需客户签字,项目经理签字,工程监理签字,工程部经理验收。
回复
支持
反对
使用道具
举报
小丸子
当前离线
积分
3977
帖子
发消息
小丸子
发表于 2017-5-24 13:36:30
|
显示全部楼层
波涛吊顶框架基础验收细节: 1、吊顶验收必须在石膏板固定上之前验收,这样才能看到框架施工细节 2、中央空调出风口必须加木方固定 3、跨度大的吊顶必须采用拱形龙骨架 4、基础框架验收的时龙骨之间必须用钢排钉固定 5、边龙采用木针加干壁钉固定,间距为50cm 6、付龙长度超过50cm时候必须使用吊筋卡龙固定,卡龙必须出头且加吊筋固定
回复
支持
反对
使用道具
举报
小丸子
当前离线
积分
3977
帖子
发消息
小丸子
发表于 2017-5-24 13:37:39
|
显示全部楼层
波涛材料施工细节:采用轻钢龙骨难燃材料,防火工艺,且结构更加牢固,使用寿命长。
回复
支持
反对
使用道具
举报
小丸子
当前离线
积分
3977
帖子
发消息
小丸子
发表于 2017-5-24 13:39:11
|
显示全部楼层
波涛施工细节:轻钢龙骨吊顶,必须是50国标轻钢龙骨,底面间隔30cm,侧面间隔60cm,8mm通丝+组合膨胀。
回复
支持
反对
使用道具
举报
返回列表
高级模式
B
Color
Image
Link
Quote
Code
Smilies
您需要登录后才可以回帖
登录
|
立即注册
本版积分规则
发表回复
回帖后跳转到最后一页
关闭
18051420240
工作日:8:30-18:00
周 六:9:00-18:00
客户服务一
客户服务二
客户服务三